Wonen zonder zorgen

Je warme thuis, in te richten naar je eigen smaak

Stijlvolle gezelligheid

Moderne inrichting met oog voor detail

Tijdloos genieten

Met een mooie afwerking

Wonen in De Wijngaard


In De Wijngaard woon je in je eigen assistentiewoning in alle comfort en vrijheid midden in het bruisende Kortrijkse stadscentrum. Je hebt er je eigen plek, gezellig in te richten naar jouw smaak en voorkeuren. Het is een warme en veilige thuis, waar je gelijkgestemden kan ontmoeten en samen geniet van het binnen- en buitenleven.

Elke assistentiewoning bestaat uit een ruime en lichtrijke living met open keuken voorzien van alle nodige toestellen en bergruimte, 1 of 2 slaapkamers en een ingerichte badkamer. Er is steeds een eigen privé terras voorzien.

Onder De Wijngaard is er een ondergrondse parkeergarage die 24/7 toegankelijk is. Vraag gerust naar de mogelijkheden om een standplaats te huren. 

Wonen in alle comfort

  • Moderne keuken met vaatwas, inductiekookplaten, combi-oven en koelkast met vriesvak
  • Badkamer met inloopdouche en douchezitje
  • Lichte leefruimte met CV, aansluiting voor tv-internet-telefoon
  • Geïntegreerd noodoproepsysteem 24/7 met 2 vaste knoppen en 1 polsband
  • Opbergruimte met aansluiting wasmachine en condenserende droogkast
  • Eigen privé terras

Prijzen en mogelijkheden

We hebben een aantal types assistentiewoningen beschikbaar, verschillend in grootte en ligging. Je kan kiezen uit appartementen met 1 of 2 slaapkamers en aan de tuinkant of straatkant.

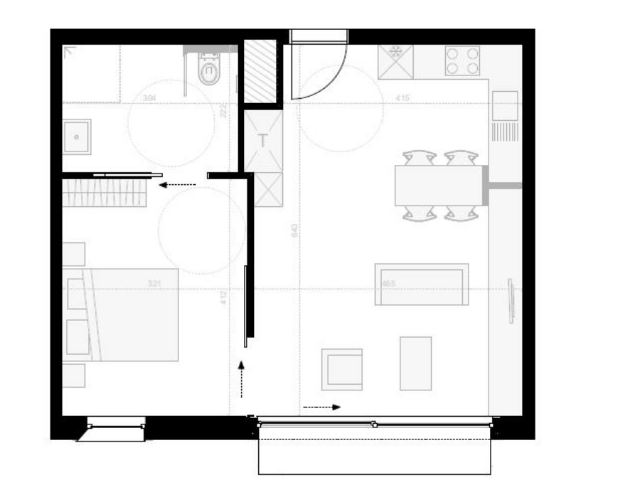
Plattegrond 2Slk (1)

Appartement met 2 slaapkamers, voorkant Sint-Janslaan

Bekijk plattegrond
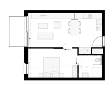
Plattegrond 2Slk Tuinkant

Appartement met 2 slaapkamers, tuinkant Sint-Janslaan

Bekijk plattegrond
Plattegrond 1Slk Tuinkant

Appartement met 1 slaapkamer, voorkant Sint-Janslaan

Bekijk plattegrond
Plattegrond 1Slk Tuinkant

Appartement met 1 slaapkamer, tuinkant Wijngaardstraat

Bekijk plattegrond
DW 1Slpk Tuin Sintjanslaan

Appartement met 1 slaapkamer,  tuinkant Sint-Janslaan

Bekijk plattegrond
DW 1Slpk Straat Wijngaardstraat

Appartement met 1 slaapkamer, voorkant Wijngaardstraat

Bekijk plattegrond
DW 2Slpk Tuin Wijjgaardstraat

Appartement met 2 slaapkamers, tuinkant Wijngaardstraat

Bekijk plattegrond

 

De prijzen voor de huur van een assistentiewoning in De Wijngaard variëren tussen €43,35 en €61,93/dag, met privé terras en parkeermogelijkheid (€2,64/dag).

In deze prijs zitten de noodoproepen 24/7, familiale en brandverzekering, het activiteitenaanbod en omkadering en ook de syndicuskosten inbegrepen. 

Water, energie, maaltijden, tv/internet/telefonie en thuiszorgdiensten zijn exclusief.

MOMENTEEL ENKELE VRIJE ASSISTENTIEWONINGEN! ONMIDDELLIJK BESCHIKBAAR EN INSTAPKLAAR. 

Kom gerust eens langs voor een vrijblijvend bezoek!

Deze website gebruikt cookies en scripts om je surfervaring zo veel mogelijk te optimaliseren. Gelieve aan de duiden welke cookies we mogen registreren.